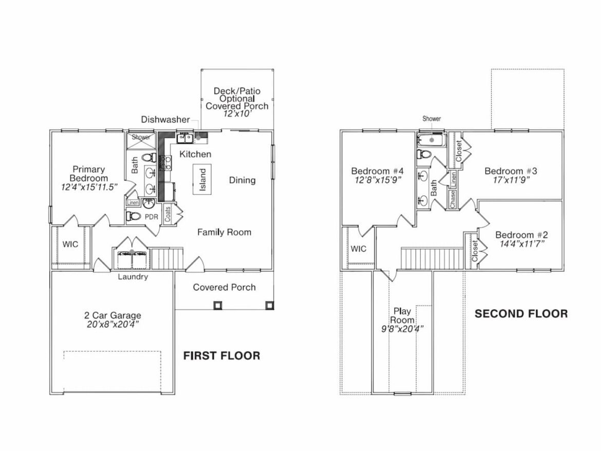
The Nicholson Home Plan
The Nicholson is a 1,888 sq ft two-story family home featuring 4 bedrooms, 2.5 bathrooms, and a two-car garage. The open main floor offers a welcoming family room, kitchen, and dining area that flow effortlessly for everyday living and entertaining. Upstairs, bedrooms provide comfortable private spaces for everyone, while the primary suite offers a peaceful retreat. Practical touches like a mud/laundry area and covered outdoor space add convenience and livability throughout.

Available in These Communities
We’ll help you find your home
Fill out the form below, or contact us by calling (910) 123-4567 or emailing us at info@solomonhomebuilders.com
"*" indicates required fields

