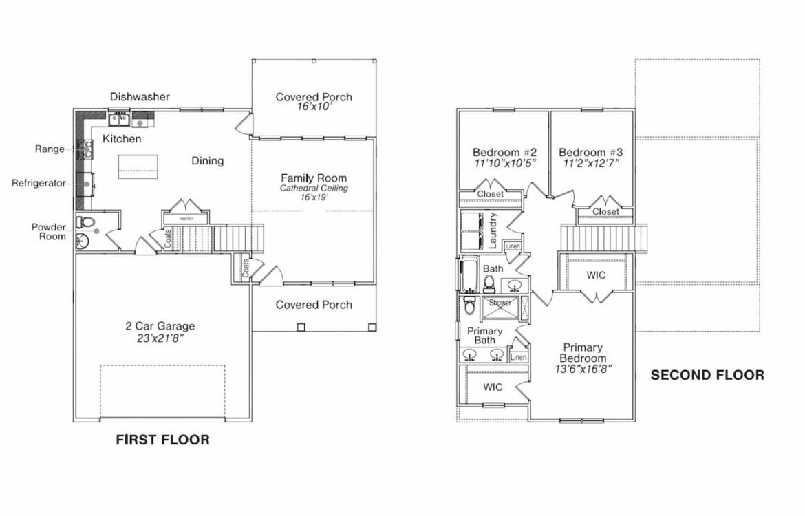
The Cason Home Plan
The Cason is a thoughtfully designed 1,623 sq. ft. two-story home that blends open living with private retreats. The first floor features a spacious family room with an open kitchen and dining area, powder room, and easy access to covered porches—ideal for indoor-outdoor living. Upstairs, the primary suite offers a walk-in closet and private bath, while two additional bedrooms, a full bath, and laundry provide comfortable space for family or guests. A two-car garage adds everyday convenience.

Available in These Communities
We’ll help you find your home
Fill out the form below, or contact us by calling (910) 123-4567 or emailing us at info@solomonhomebuilders.com
"*" indicates required fields

