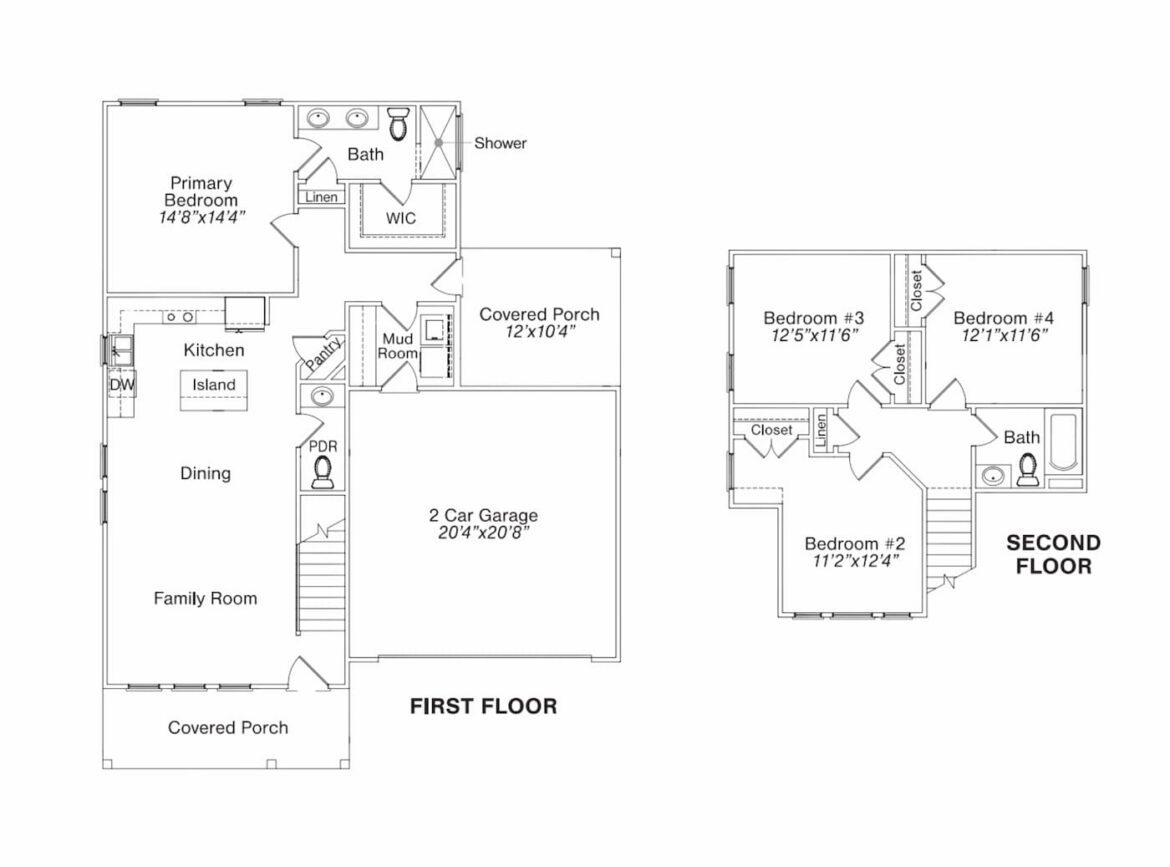
The Angie Home Plan
The Angie is a well-balanced 1,606 sq. ft. two-story home with 4 bedrooms and 2.5 bathrooms, designed for both everyday function and flexible living. The main floor features an open kitchen, dining, and family room layout with a mud room and private primary suite, while the second floor offers three additional bedrooms and a full bath. Covered porches and a two-car garage add extra comfort and convenience.

Available in These Communities
We’ll help you find your home
Fill out the form below, or contact us by calling (910) 123-4567 or emailing us at info@solomonhomebuilders.com
"*" indicates required fields

